Welcome

🎁💰恭喜发财💰🎁

国产激情久久久久久熟女影视

青睐网页访问深圳富煌建成有限平台承担的责任平台!
微信官网

富煌钢构装配式钢结构住宅小区荣获“中国钢结构金奖”

发布消息时间日期:2023/5/26 查询两次:2592

   日前,第十五届“中国钢结构金奖”(第二批)获奖项目名单揭晓,安徽富煌钢构股份有限公司承建的工程总承包项目合肥市巢湖映月湾装配式钢结构住宅小区榜上有名!

   中国钢结构金奖是经国务院批准的建筑领域六大国家级奖项之一,是钢结构领域的最高质量管理奖项,评选对象为我国从事建筑钢结构制作、安装企业承建的各类工程质量达到国内领先水平的建筑钢结构工程项目。

   一、项目概况

   巢湖映月湾小区位于巢湖市湖光路与健康西路交口,建设内容包括安置住宅单体及地下车库等,总建筑面积98812.38㎡,项目由8栋高层装配式钢结构住宅楼组成,层数有19层、21层、23层、25层和27层。该项目是巢湖市首个大型装配式钢结构住宅小区EPC项目,是安徽省装配式建筑示范项目,全面践行合肥市装配式建筑“1+5”建造模式,装配率51%,建造技术体系采用的装配式部品部件主要包括:基于型材的钢管混凝土框架-支撑结构;ALC条板+保温装饰一体板围护体系;楼梯、空调板、太阳能板等水平构件采用PC预制构件,全装修设计并施工。

的项目效用图

创业项目实景图鸟瞰图

   二、关键技术应用

   1.建立了装配式钢结构住宅节能、绿色、标准化的户型

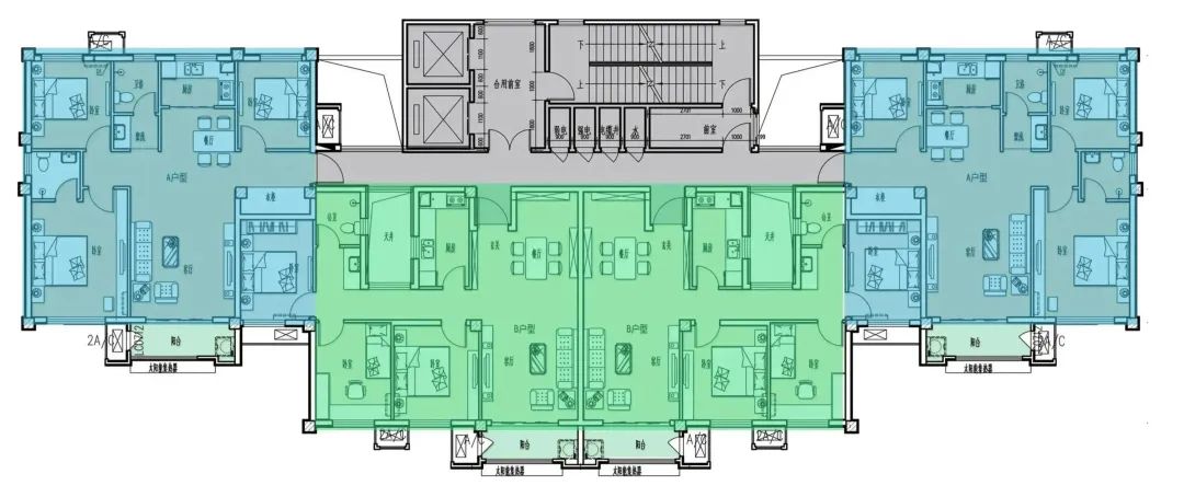
   针对钢结构住宅建筑结构特点,建立了装配式钢结构住宅节能、绿色、标准化的户型库,采用少规格、多组合的标准化设计,实现建筑与部品部件的通用性及构件标准化,体现钢结构住宅的大空间与可变空间的设计理念。

A+B格局规则层表面图

C+D房形条件层品面图

   2.创新提出“外柱外凸”、户内无凸梁凸柱的建筑设计理念

   在前期方案设计过程中,创新提出了“外柱外凸”的建筑设计理念,既降低了室内“凸梁凸柱”负面居住体验,同时通过外柱的凸凹增强了外立面的层次感效果。

   在项目实施过程中,通过改进装配式钢结构建筑钢梁包覆节点,做到户内无凸梁的效果,给住户更好的居住体验。

外柱外凸平面图布局图

外柱外凸平面功效图

   3. 优化了装配式组合结构与混凝土梁连接技术

   地下室采用钢管混凝土框架柱外包混凝土形成劲性组合结构柱,劲性柱伸入地下室底板,顶板采用钢筋混凝土梁,创新提出了劲性组合结构柱与钢筋混凝土梁钢筋分层钢板过渡焊接连接技术,有效解决了混凝土梁中多层钢筋连接受力性能的技术问题,同时,该技术解决了外露钢结构柱在地下潮湿环境中的防腐、防火技术问题。

团体构架柱接点实景图

   4.系统总结应用了装配式钢结构建筑自承式楼板支撑系统安装施工工法

   该项目系统总结应用了装配式钢结构建筑自承式楼板支撑系统安装施工工法。该工法适用于钢框架和钢框架支撑结构体系建筑,适用楼板类型包括叠合楼板、现浇楼板、压型钢板楼承板等,适用范围较广。

自承式漏粪板采用撑起、软件

   安装时,作业人员通过螺杆对自支撑系统支座高度调节,进而实现整个支撑结构竖向调整,这不仅加强了楼板支撑结构的稳定性,还提高了楼板施工安装速度。该工法标准化程度高,可循环利用,成本低,安装及拆除方便。

现场视频应该用相册图片

技艺操作程序流程图

   5.探索实践自密实混凝土浇筑新工艺

   提出了具有标准化连接节点的钢管混凝土柱高抛自密实混凝土振捣施工工艺,在标准化连接节点的横隔板节点处设置附着式振动器,经过模拟现场施工场景,调试最佳振动频率,使得自密实混凝土在横隔板拐角处具有良好的充填性、保塑性,达到能够自动填充的目的,该技术在工程实施中取得了巨大的提质增效作用。

依附式板材振动幅度大加工做实验的时候

   6.通过研究保温装饰板系统的粘锚托固定方式,完善了连接工艺做法,提高了施工效率,提升了整体安全性。

   项目各单体外墙外保温系统均使用保温装饰板,工程技术及研发人员通过对锚固组件、托架进行构造优化设计、对粘结工艺进行工程试验,研发了一套更适合装配式钢结构建筑的连接技术,提升了整体安全性,为装配式高层钢结构外墙外保温安全提供系统的解决方案。

保溫装饰材料板锚栓抗拔耐压试验深入分析

   7.系统解决装配式钢结构建筑围护系统三大防水痛点

   针对出屋面钢柱防水薄弱点,采用钢柱与混凝土楼板钢筋加强连接并设置止水环的做法,有效解决了因钢结构与楼板连接薄弱而造成的防水质量问题。

   在窗边防水方面,创新提出采用窗台混凝土压顶防水构造节点。将窗台下压顶伸入两侧的ALC条板,在ALC条板相应位置预先开槽,并在窗台两侧压顶槽内的扁铁上焊接横向构造钢筋,然后支设模板浇筑下压顶混凝土,并通过滴水线、企口等防排水构造措施,这样显著提高了窗台整体防水性能。

   在厨房卫生间区域,采用钢柱外包钢筋混凝土做法,既解决了钢柱在潮湿环境中防腐问题,又解决了防火包覆难点,通过结构加强措施永久杜绝了钢柱在厨房卫生间等涉水区域因不同材料连接整体性差而导致的渗漏隐患。

   8.全过程应用BIM技术

   在方案策划阶段明确全过程应用BIM技术,并在项目实施阶段也进行了大量应用实践。该技术在项目设计阶段进行了场地分析、可视化展示,建筑的结构分析、性能分析等诸项工作,显著提升了设计效率及设计质量;在施工阶段进行施工深化设计、平面布置模拟等工作,辅助施工,有效辅助项目管理人员对现场施工各项情况的把控。特别是地下室和室外管网施工过程中,因为提前做好综合管网的信息化模型,并进行了多专业之间的碰撞检查、优化布置,现场各种工序之间无干涉,大大减少了协调工作,管网施工一次性完工,避免了返工,提高了功效。

BIM操作点

该项目徜徉布局

土建预算基础施工推进改革制作——装配式空调系统板

地面室管道绘图

   9.开发了BIM+智慧工地管理系统

   针对装配式钢结构住宅建造智慧工地建设现实需要,基于BIM技术的信息化管理平台,依托物联网等信息化技术形成了BIM+智慧工地管理系统,实现了装配式建筑建造全过程可视、可管、可控,同时实现工程信息实时采集、智慧感知与决策。研发了钢构件BIM-MES的深度融合技术,构建了P-BIM钢结构加工制作一体化信息管理平台,利用BIM技术、先进的制造工艺、智能制造数控生产线,实现了钢构件的智能制造。

知慧工地小工方法系统软件

手机软件重要名誉权职业证书

   10.基于型钢标准化构件的智能制造技术

   研发了基于装配式钢结构住宅的成品型钢的标准化梁贯通式连接节点,并形成了加工制作工艺流程,将工业机器人手臂用于标准化节点制作的焊接,提高了生产效率与焊接质量,形成了安徽省省级工法,推动了我省装配式钢结构建筑领域的智能制造技术。

   三、项目成果

   本项目获得了丰硕的科研技术成果,形成的发明专利、施工工法、试验数据等多项技术被行业标准采纳与借鉴,同时,项目还获得了安徽省建筑安全生产标准化示范工地、合肥市建筑工程优质结构奖等诸多荣誉,为项目实施取得了良好的社会和经济效益。

芜湖市建筑材料建筑项目优异结构类型奖

湖南省房建安会种植标准单位化试点建筑施工

   长期以来,富煌钢构始终坚持团结奋进、改革创新、稳健提升、攻坚克难的态度,持续发扬“祥和奉献、奋进创新、勇争一流、永不自满”的富煌精神,不断推动技术管理水平迈上新台阶。在未来有限的居住建筑发展空间里,富煌钢构将紧紧抓住当下发展的新特点,打造臻品,努力把钢结构住宅产品推向一个时代新高地。